Comap InteliLite 4 MRS 16 | Single Gen-Set Controller!
The InteliLite 4 MRS 16 stands as a sophisticated controller
tailored for prime power applications, guaranteeing a dependable power supply.
This advanced controller efficiently oversees, protects, and controls both the
gen-set and circuit breaker to ensure optimal load distribution.
Key Features:
- Seamless
configuration with InteliConfig for effortless setup.
- Remote
monitoring capabilities for enhanced accessibility.
- Cybersecurity
embedded in the design for robust protection.
- Reliable
internet access for continuous connectivity.
- Built-in
PLC logic for streamlined control.
- Simplified troubleshooting for quick issue resolution.
The InteliLite 4 MRS 16 ensures dependable prime power while
offering cost-effective maintenance solutions through remote monitoring and
control. With ComAp's online tool, WebSupervisor, users can manage gen-set
operations from anywhere, anytime.
Key Features:
- Seamless
setup and monitoring via InteliConfig, ComAp’s PC tool.
- Built-in
PLC logic and editor with drag-and-drop blocks for easy customization.
- AirGate
2.0 for remote equipment connection, bypassing IP concerns.
- User-defined
protections and setpoints augment default safeguards.
- WebSupervisor
enables remote gen-set control and monitoring via cloud-based fleet
management.
- High-level
security features prioritize business and data safety.
- Event-based
history aids fast troubleshooting with 350 available records.
- Upgradeable
platform for advanced applications.
- Integrated
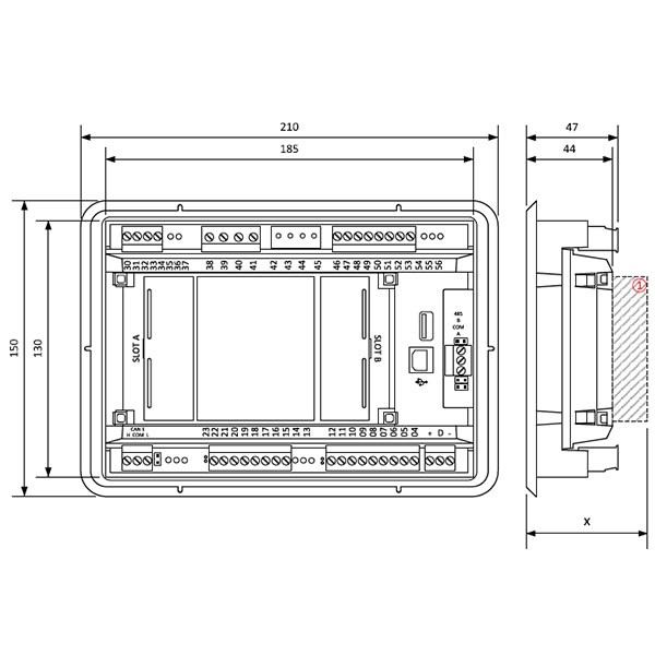
communication ports (USB, USB host, CAN, RS485).
- Two
slots for plug-in modules supporting 4G, Ethernet, RS232/485, and additional
inputs/outputs.
- Improved
hardware platform with switchable analogue inputs and 5V reference output.
- CAN
module extensions enhance functionality.
- True
Root Mean Square measurement for precision.
- Zero
power mode prevents battery drainage in prime power applications.
- Option
to integrate InteliSCADA for quick SCADA system creation and monitoring.
- Secure
user management with five unique accounts.
- Multi-purpose
maintenance and exercise timers with a backup RTC battery.
- Multi
ECU support for two control units.
- Compatibility
with remote displays, Modbus register mapping, and multilingual support.
- Optional
geofencing for efficient unit tracking and theft prevention.
- Power
over USB for convenient controller configuration.
- Dual
prime power application support, pulse counters, and load shedding.
- Dummy
load management prevents genset unloaded operation.
- Dual
Starter support for enhanced functionality.
The InteliLite 4 MRS 16 is also available in an extremely low-temperature version, identified by the order code IL4MRS16BLA. Experience unparalleled control, monitoring, and adaptability for your power generation needs.
Compact Gen-Set Controller for Single Operating Genset
- Suitable
for manual and remote start (MRS) applications
- Easy
setup process
- Extensive
gen-set monitoring and protection features
- Exceptional
EFI engine support with plain text diagnostic messages via J1939
- Running
hours event and performance logging
- Multiple
user-changeable languages in the controller, with additional options in
the installation suite
- Capability
for plug-in extension modules
- Automatic
SMS alerts for alarms or events and gen-set control via SMS*
- Modbus
communication support
- Automatic
Generator Circuit Breaker (GCB) control
- D+
pre-excitation terminal
- True
RMS measurement
- Three-phase
power measurement
- Three
configurable analog inputs
- Four
binary inputs
- Four
binary outputs
- Pre-installed
IL-NT-USB communication module



 Failure Control Modules.jpg)